od 195 € mesačne
120,00 €/m²
Stavebný pozemok Tužina aj so stavebným povolením a projektovou dokumentáciou RD
Lokalita: Tužina
350 m²
120.00 €/m²
Opis
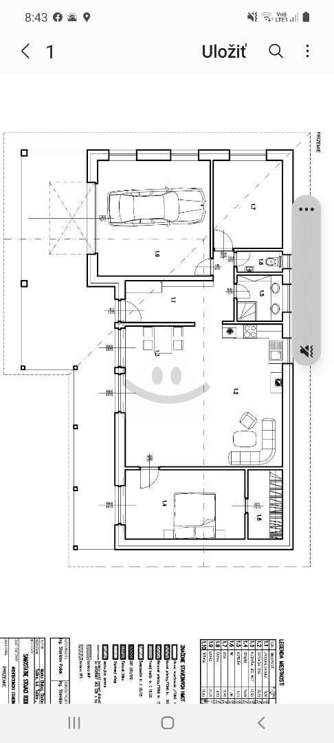
Reality Alpia ponúka na predaj menší stavebný pozemok o rozlohe 350m2 v obci Tužina s platným stavebným povolením od Mája 2022.
S pozemkom sa predávajú aj projekty 3-izbového rodinného domu s garážou.
Projekt sa dá ešte meniť.
Na pozemku sú inžinierské siete elektrika, voda.
Pozemok sa nachádza v tichej lokalite.
Pre viac informácií alebo obhliadku nás kontaktujte na t.č. 0917047195
Charakteristiky
Benefity
- Najlepšia cena za m2
Dátum poslednej aktualizácie: 11.07.2022
Kontakt
Podobné nehnuteľnosti
5 901 m²
Na predaj stavebný pozemok 5901m2– Tužina, okres Prievidza
767 m²
Na predaj stavebný pozemok – Diviaky nad Nitricou, časť Banky















